Добро пожаловать на http://vipplan.ru

Випплан Орел - это тысячи проектов домов в нашем каталоге!

Вы всегда сможете найти для себя проект дома вашей мечты! Даже если этого не случилось, мы готовы в любую минуту предложить проект индивидуального дома.

Забыли пароль?
Вы еще не регистрировались?

Перейдите по ссылке ниже на страницу регистрации.

Регистрация...

Внимание!!!

В проектную документацию могут быть внесены изменения любой сложности, в соответствии в Вашими пожеланиями!

Полезные статьи

Виды бассейнов

В наше время, строительство бассейна на территории своего участка, не такая уж и роскошь. Выбор видов и стилей бассейна, на сегодняшний день, очень большой....

Правильная изоляция подвала

Какой выбрать материал, как правильно выполнить работу, перед началом изоляции подвала какие подготовительно-строительные работы следует провести и какой момент играет правильное выполнение работ. Последние несколько лет придали много хлопот жильцам домов, увлажнив им подвалы. Этот период показал насколько важно обеспечить надлежащую защиту зданий от грунтовых вод и воздействия влаги....

Проекты домов и коттеджей > Каталог проектов домов > Проект двухэтажного дома с гаражом Vg1317

Проект двухэтажного дома с гаражом Vg1317

Проект двухэтажного дома с гаражом
Зарегистрируйтесь

Проект № Vg1317


Техническое описание
Общая площадь: 184.52 м2
Жилая площадь: 103.54 м2
Высота здания: 9.59 м
Размеры дома: 13.14м×9.84м
Кол-во комнат: 5
Цокольный этаж: нет
Гараж: нет
Мансарда: нет

Kонструкция
Фундамент: Монолитная ж/б плита
Перекрытия: Сборные ж/б плиты
Материал стен: Газобетон

Архитектурный раздел
Конструктивный раздел
Инженерный раздел
АР+КР - 60 000 (Со скидкой 20%)
АР+КР+ИР - 124 750 (Со скидкой 50%)
Индивидуальный проект двухэтажного дома с размерами здания 13,14 x 9,84м. Наружная отделка здания - облицовочный кирпич 3х цветов (светло-бежевый, бежевый, коричневый). Отделка вентканалов и дымоходов - клинкерная плитка. Цоколь - отделка клинкерной плиткой (в цвет светло-бежевого кирпича). Фундамент - монолитная ж/б плита (под всей площадью дома). Необходимо предусмотреть мероприятия в соответствии с п.п. 6.3-6.5 СНиП 2.02.01-83: Устройство уплотненных грунтовых подушек из песка, гравия, щебня; защита их от разрушения атмосферными воздействиями и водой в период строительства (водозащитные мероприятия, недопущение перерыва в устройстве оснований и последующем возведении фундаментов, недобор грунта в котловане.) Наружные стены: газобетонные блоки D500, утеплитель мин.вата, вент.зазор, облицовочный кирпич. Внутренние стены и перегородки - газобетонные блоки. Перемычки монолитные и сварные из профиля проката. Пол первого этажа - пол по плите. Межэтажное перекрытие - сборные ж/б плиты перекрытия. Чердачное перекрытие - по деревянным балкам с использованием теплоизоляционных материалов типа "URSA" в межбалочном пространстве. Крыша четырехскатная. Покрытие - гибкая черепица. Лестница выполняется по индивидуальному заказу. Окна - металлопластиковые, выполненные по индивидуальному заказу.
Генплан застройки участка / Паспорт проекта 7000 руб / 10000 руб
Инженерный раздел (полный) 64750 руб (92500 руб)
Смета на строительство 46250 руб
Теплотехнический расчет материалов стен Бесплатно
Стоимость проекта со незначительнми изменениями 70350 руб
Стоимость проекта со средними изменениями* 84300 руб
Стоимость проекта со значительными изменениями** 88000 руб

План первого этажа


Гараж — 18,53 кв м
Крыльцо — 2,64 кв м
Бойлерная — 7,39 кв м
С/у — 2,97 кв м
Холл — 3,44 кв м
Кабинет — 10,96 кв м
Кухня — 10,16 кв м
Гостиная — 29,29 кв м
Кладовая — 3,78 кв м
Тамбур — 7,36 кв м
Крыльцо — 4,08 кв м

Проект двухэтажного дома с гаражом

Проект двухэтажного дома с гаражом

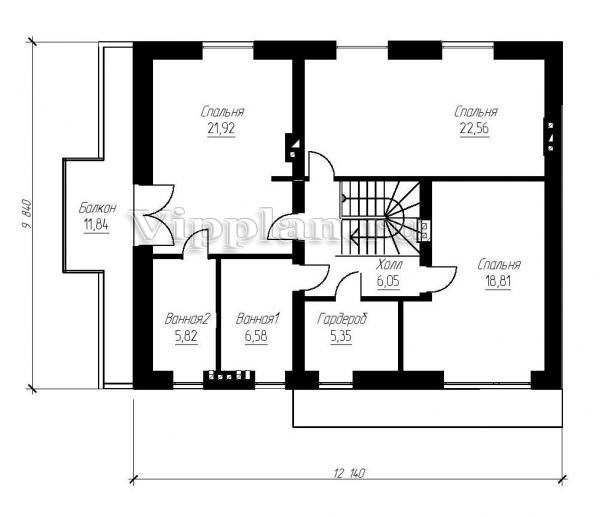
План второго этажа


Балкон — 11,84 кв м
Ванная 1 — 6,58 кв м
Ванная 2 — 5,82 кв м
Гардероб — 5,35 кв м
Холл — 6,05 кв м
Спальня — 18,81 кв м
Спальня — 22,56 кв м
Спальня — 21,92 кв м
Проект двухэтажного дома с гаражом Проект двухэтажного дома с гаражом Проект двухэтажного дома с гаражом Проект двухэтажного дома с гаражом

Модификации проектов

Внесение изменений и привязка к участку строительства

В любой из проектов от компании VIPplan - Орел по вашему желанию могут быть внесены изменения в материалы стен, материалы наружной отделки дома, а также будет произведена адаптация проекта под конкретный регион строительства (с учетом грунтов региона, геологических особенностей вашего участка и местных климатических условий) - БЕСПЛАТНО !!! (кроме проектов со скидкой и проектов наших партнеров).

Любой из проектов, размещенных на сайте orel.vipplan.ru мы можем выполнить из требуемых вам строительных материалов: ячеистый бетон (газобетон, пеноблок), керамоблок, кирпич, шлакоблок, бетонный блок, дерево (брус, клееный брус), каркасная технология (деревянный каркас, металлокаркас (ЛСТК)).

Фасад дома и его наружную отделку так же возможно выполнить с применением различных облицовочных материалов: структурной штукатурки, (с утеплителем и без), сайдингом (пластиковый или металлосайдинг), фиброплитами, кирпича.

 
6 Избранные
проекты

Доставка проектов по России: Москва (Московская область), Санкт-Петербург (Ленинградская область), Краснодар, Ростов-на-Дону, Ставрополь, Сочи, Волгоград, Новосибирск, Белгород, Брянск, Воронеж, Саратов, Хабаровск, Астрахань, Нальчик, Владикавказ, Екатеринбург, Тюмень, Самара, Нижний Новгород, Казань, Пермь, Уфа, Челябинск, Красноярск, Ханты-Мансийск, Иркутск, Курган, Оренбург, Омск, Томск, Барнаул, Новокузнецк, Кемерово, Абакан, Чита, Якутск, Южно-Сахалинск, Петропавловск-Камчатский и страны ближнего зарубежья: Белоруссия, Украина, Казахстан