Добро пожаловать на http://vipplan.ru

Випплан Орел - это тысячи проектов домов в нашем каталоге!

Вы всегда сможете найти для себя проект дома вашей мечты! Даже если этого не случилось, мы готовы в любую минуту предложить проект индивидуального дома.

Забыли пароль?
Вы еще не регистрировались?

Перейдите по ссылке ниже на страницу регистрации.

Регистрация...

Внимание!!!

В проектную документацию могут быть внесены изменения любой сложности, в соответствии в Вашими пожеланиями!

Полезные статьи

Комбинированные дома

Посмотрите, насколько далеко шагнула архитектура за последние десятилетия. Сколько изменилось в облике современных городов. А задумывались ли наши родители, о том что они увидят необыкновенные небоскребы и элитные многоквартирные дома, чьи фасады напоминают обруганную капиталистическую действительность. У людей появилась возможность построить дом за городом и в тишине на природе, реализовать любые дизайнерские фантазии. Те, кто может позволить себе частный дом, не ограничены финансами. Для многих частный дом – это показатель их материального благополучия, поэтому никто из них не хочет испол...

Виды фундаментов

Можно смело сказать, что самое главное качество фундамента - надежность. Фундамент дома бывает нескольких видов. Все они отличаются прочностью, технологией закладывания и областью использования. Запомните, экономить на фундаменте – плохая идея. Затраты на ремонт будут огромными, а зачастую в случае нарушения технологии закладки фундамента исправить ошибку будет невозможно....

Проекты домов и коттеджей > Каталог проектов домов > Проект коттеджа с мансардой Vg1449

Проект коттеджа с мансардой Vg1449

Проект коттеджа с мансардой
Зарегистрируйтесь

Проект № Vg1449


Техническое описание
Общая площадь: 95.91 м2
Жилая площадь: 61.18 м2
Высота здания: 8.52 м
Размеры дома: 8.96м×8.18м
Кол-во комнат: 4
Цокольный этаж: нет
Гараж: нет
Мансарда: есть

Kонструкция
Фундамент: Ленточный монолитный ж/б
Перекрытия: Монолитная ж/б плита
Материал стен: Бетонные блоки

Архитектурный раздел
Конструктивный раздел
АР+КР - 44 000 (Со скидкой 20%)
Проект индивидуального одноэтажного жилого дома с мансардой с размерами здания 8,96 x 8,18 м. Наружная отделка здания – штукатурка. Фундамент – ленточный монолитный ж/б. Наружные стены – из керамзитобетонного блока с отделкой штукатуркой. Внутренние стены – из полнотелого кирпича. Перегородки – каркасные с ГКЛ. Пол первого этажа – пог по грунту, межэтажное перекрытие - монолитная ж/б плита перекрытия. Крыша двускатная. Кровля – металлочерепица. Окна — металлопластиковые
Генплан застройки участка / Паспорт проекта 7000 руб / 10000 руб
Инженерный раздел (полный) 50000 руб
Смета на строительство 25000 руб
Теплотехнический расчет материалов стен Бесплатно
Стоимость проекта со незначительнми изменениями 52600 руб
Стоимость проекта со средними изменениями* 59800 руб
Стоимость проекта со значительными изменениями** 61700 руб

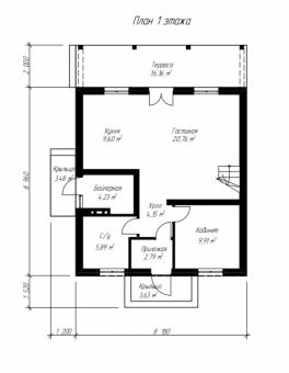
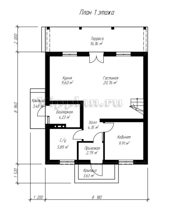
План первого этажа


Прихожая — 2,79 м2
Холл — 4,35 м2
Гостиная — 20,76 м2
Кухня — 9,60 м2
Бойлерная — 4,23 м2
С/у — 5,89 м2
Кабинет — 9,91 м2
Бойлерная — 4,23 м2

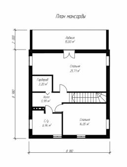
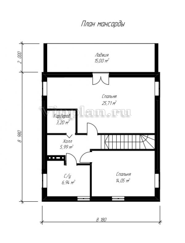
План мансардного этажа


Холл — 5,99 м2
Гардероб — 3,20 м2
Спальня — 25,71 м2
С/у — 6,94 м2
Спальня — 14,05 м2
Лоджия — 15 м2
Проект коттеджа с мансардой Проект коттеджа с мансардой Проект коттеджа с мансардой Проект коттеджа с мансардой

Модификации проектов

Внесение изменений и привязка к участку строительства

В любой из проектов от компании VIPplan - Орел по вашему желанию могут быть внесены изменения в материалы стен, материалы наружной отделки дома, а также будет произведена адаптация проекта под конкретный регион строительства (с учетом грунтов региона, геологических особенностей вашего участка и местных климатических условий) - БЕСПЛАТНО !!! (кроме проектов со скидкой и проектов наших партнеров).

Любой из проектов, размещенных на сайте orel.vipplan.ru мы можем выполнить из требуемых вам строительных материалов: ячеистый бетон (газобетон, пеноблок), керамоблок, кирпич, шлакоблок, бетонный блок, дерево (брус, клееный брус), каркасная технология (деревянный каркас, металлокаркас (ЛСТК)).

Фасад дома и его наружную отделку так же возможно выполнить с применением различных облицовочных материалов: структурной штукатурки, (с утеплителем и без), сайдингом (пластиковый или металлосайдинг), фиброплитами, кирпича.

 
6 Избранные
проекты

Доставка проектов по России: Москва (Московская область), Санкт-Петербург (Ленинградская область), Краснодар, Ростов-на-Дону, Ставрополь, Сочи, Волгоград, Новосибирск, Белгород, Брянск, Воронеж, Саратов, Хабаровск, Астрахань, Нальчик, Владикавказ, Екатеринбург, Тюмень, Самара, Нижний Новгород, Казань, Пермь, Уфа, Челябинск, Красноярск, Ханты-Мансийск, Иркутск, Курган, Оренбург, Омск, Томск, Барнаул, Новокузнецк, Кемерово, Абакан, Чита, Якутск, Южно-Сахалинск, Петропавловск-Камчатский и страны ближнего зарубежья: Белоруссия, Украина, Казахстан