Добро пожаловать на http://vipplan.ru

Випплан Орел - это тысячи проектов домов в нашем каталоге!

Вы всегда сможете найти для себя проект дома вашей мечты! Даже если этого не случилось, мы готовы в любую минуту предложить проект индивидуального дома.

Забыли пароль?
Вы еще не регистрировались?

Перейдите по ссылке ниже на страницу регистрации.

Регистрация...

Внимание!!!

В проектную документацию могут быть внесены изменения любой сложности, в соответствии в Вашими пожеланиями!

Полезные статьи

Проекты быстровозводимых домов и коттеджей в Орле

Некоторые люди до сих пор считают, что быстровозводимые дома представляют собой безликие, недолговечные, однотипные строения. Эти утверждения не соответствуют действительности. На данный момент, строительные технологии шагнули вперед и дома «быстрого приготовления» считаются эталоном комфорта, уюта и даже выделяются, в архитектурном плане, на фоне дорогих кирпичных коттеджей. Быстровозводимые дома не дорогие и изготавливаются в кратчайшие сроки....

Приготовление раствора для наливного пола

Если вы хотите чтобы пол получился ровным, наливные полы – лучший вариант. Особое внимание следует уделить приготовлению раствора. А все потому, что после нанесения на цементную стяжку или бетонное основание внести коррективы или изменить что-либо уже не получится. Поэтому к замешиванию раствора стоит подходить очень внимательно....

Проекты домов и коттеджей > Каталог проектов домов > Проект бани из газобетона Vg162

Проект бани из газобетона Vg162

Проект бани из газобетона
Зарегистрируйтесь

Проект № Vg162


Техническое описание
Общая площадь: 47 м2
Размеры дома: 7м×13м
Кол-во комнат: 1
Цокольный этаж: нет
Гараж: нет
Мансарда: нет

Kонструкция
Фундамент: Ленточный монолитный ж/б (под несущими стенами)
Отделка дома: Штукатурка
Перекрытия: Деревянные балки
Материал стен: Газобетонные блоки, штукатурка. Перегородки – из кирпича

Архитектурный раздел
Конструктивный раздел
АР+КР - 36 000 (Со скидкой 20%)

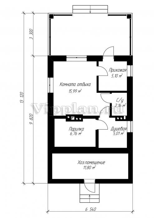
Индивидуальный проект бани с размерами здания 13,12 х 6,54.

Наружная отделка здания – штукатурка..

Фундамент – ленточный монолитный ж/б (под несущими стенами).

Наружные стены – газобетонные блоки, штукатурка.

Внутренние стены - из газобетонных блоков.

Перегородки – из кирпича.

Пол первого этажа - пол по грунту. Чердачное перекрытие - деревянные балки.

Крыша металлочерепица. Кровля – двускатая.

Окна - металлопластиковые, выполненные по индивидуальному заказу.

Технико-экономические показатели

Общая площадь помещений — 46,82 м2

Этажность — 1

Высота здания — 5,47 м от отметки ур. земли до конька.

Генплан застройки участка / Паспорт проекта 7000 руб / 10000 руб
Инженерный раздел (полный) 25000 руб
Смета на строительство 12500 руб
Теплотехнический расчет материалов стен Бесплатно
Стоимость проекта со незначительнми изменениями 43800 руб
Стоимость проекта со средними изменениями* 47400 руб
Стоимость проекта со значительными изменениями** 48300 руб

План первого этажа


Прихожая - 5,10 м2
Комната отдыха - 15,99 м2
С/у - 2,16 м2
Душевая - 5,01 м2
Парилка - 6,76 м2
Хоз. помещение - 11,80 м2
Проект бани из газобетона Проект бани из газобетона Проект бани из газобетона Проект бани из газобетона
Внесение изменений и привязка к участку строительства

В любой из проектов от компании VIPplan - Орел по вашему желанию могут быть внесены изменения в материалы стен, материалы наружной отделки дома, а также будет произведена адаптация проекта под конкретный регион строительства (с учетом грунтов региона, геологических особенностей вашего участка и местных климатических условий) - БЕСПЛАТНО !!! (кроме проектов со скидкой и проектов наших партнеров).

Любой из проектов, размещенных на сайте orel.vipplan.ru мы можем выполнить из требуемых вам строительных материалов: ячеистый бетон (газобетон, пеноблок), керамоблок, кирпич, шлакоблок, бетонный блок, дерево (брус, клееный брус), каркасная технология (деревянный каркас, металлокаркас (ЛСТК)).

Фасад дома и его наружную отделку так же возможно выполнить с применением различных облицовочных материалов: структурной штукатурки, (с утеплителем и без), сайдингом (пластиковый или металлосайдинг), фиброплитами, кирпича.

 
6 Избранные
проекты

Доставка проектов по России: Москва (Московская область), Санкт-Петербург (Ленинградская область), Краснодар, Ростов-на-Дону, Ставрополь, Сочи, Волгоград, Новосибирск, Белгород, Брянск, Воронеж, Саратов, Хабаровск, Астрахань, Нальчик, Владикавказ, Екатеринбург, Тюмень, Самара, Нижний Новгород, Казань, Пермь, Уфа, Челябинск, Красноярск, Ханты-Мансийск, Иркутск, Курган, Оренбург, Омск, Томск, Барнаул, Новокузнецк, Кемерово, Абакан, Чита, Якутск, Южно-Сахалинск, Петропавловск-Камчатский и страны ближнего зарубежья: Белоруссия, Украина, Казахстан