Добро пожаловать на http://vipplan.ru

Випплан Орел - это тысячи проектов домов в нашем каталоге!

Вы всегда сможете найти для себя проект дома вашей мечты! Даже если этого не случилось, мы готовы в любую минуту предложить проект индивидуального дома.

Забыли пароль?
Вы еще не регистрировались?

Перейдите по ссылке ниже на страницу регистрации.

Регистрация...

Внимание!!!

В проектную документацию могут быть внесены изменения любой сложности, в соответствии в Вашими пожеланиями!

Полезные статьи

Печи и камины в частном доме

Спросите любого человека, и вы поймете, что каждый человек мечтает иметь свой собственный дом, который он сможет обустроить так, как ему хочется. Этот дом будет полон уюта, тепла, света и комфорта, а главное, что, придя с работы, человек сможет запросто отдохнуть у своего очага.  Нет никакой альтернативы перед выбором печи или камина. Эти две вещи не сможет  заменить ни искусственный свет, ни солнечное освещение. Камин и печь, с древности, считаются предметом роскоши. Ни один большой дом не может обойтись без них, поскольку если удастся сесть и посидеть перед этим местом, то долго нельзя будет...

Купить готовый проект дома или заказать индивидуальный?

Перед началом строительства дома возникает необходимость в проекте дома и тут встает вопрос: Купить готовый проект дома или заказать индивидуальный на заказ? Каждый из вариантов по своему хорош и имеет как свои плюсы так и минусы...

Проекты домов и коттеджей > Каталог проектов домов > Проект одноэтажного жилого дома Vg172

Проект одноэтажного жилого дома Vg172

Проект одноэтажного жилого дома
Зарегистрируйтесь

Проект № Vg172


Техническое описание
Общая площадь: 114 м2
Высота здания: 7.7 м
Размеры дома: 10м×8м
Кол-во комнат: 4
Цокольный этаж: нет
Гараж: нет
Мансарда: есть

Kонструкция
Фундамент: Щелевой
Отделка дома: Штукатурка
Перекрытия: Сборные плиты перекрытия
Материал стен: Газобетонные блоки

Архитектурный раздел
Конструктивный раздел
АР+КР - 48 000 (Со скидкой 20%)

Проект индивидуального одноэтажного жилого дома с размерами 10,38 x 7,75 м. 

Наружная отделка здания – штукатурка.
Цоколь – клинкерная плитка.
Фундамент –  щелевой.
Наружные стены запроектированы из: газобетонного блока
Внутренние стены и перегородки: из  газобетонного блока
Перекрытие межэтажное –  сборные плиты перекрытия. Материал кровли –  металлочерепица.
Окна - металлопластиковые, выполненные по индивидуальному заказу. 
 
 
Технико-экономические показатели
 
Общая площадь помещений - 114 м2
Этажность - 1 с мансардой
Высота здания - 7,70 м от отметки ур. земли до конька

Генплан застройки участка / Паспорт проекта 7000 руб / 10000 руб
Инженерный раздел (полный) 57000 руб
Смета на строительство 28500 руб
Теплотехнический расчет материалов стен Бесплатно
Стоимость проекта со незначительнми изменениями 57150 руб
Стоимость проекта со средними изменениями* 65700 руб
Стоимость проекта со значительными изменениями** 68000 руб

План первого этажа


Прихожая - 3,39 м2
Кухня - 6,36 м2
Гостиная - 24,76 м2
Холл - 1,89 м2
Кабинет - 10,42 м2
Прачечная - 5,68 м2
С/у - 3,23 м2

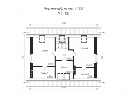
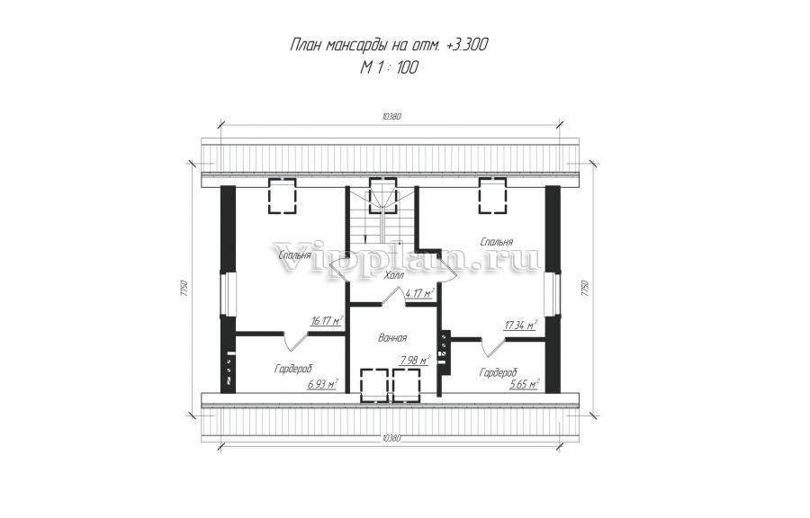
План мансардного этажа


Холл - 4,17 м2
Спальня - 16,17 м2
Гардероб - 6,93 м2
Спальня - 17,34 м2
Гардероб - 5,65 м2
Ванная - 7,98 м2
Проект одноэтажного жилого дома Проект одноэтажного жилого дома Проект одноэтажного жилого дома Проект одноэтажного жилого дома
Внесение изменений и привязка к участку строительства

В любой из проектов от компании VIPplan - Орел по вашему желанию могут быть внесены изменения в материалы стен, материалы наружной отделки дома, а также будет произведена адаптация проекта под конкретный регион строительства (с учетом грунтов региона, геологических особенностей вашего участка и местных климатических условий) - БЕСПЛАТНО !!! (кроме проектов со скидкой и проектов наших партнеров).

Любой из проектов, размещенных на сайте orel.vipplan.ru мы можем выполнить из требуемых вам строительных материалов: ячеистый бетон (газобетон, пеноблок), керамоблок, кирпич, шлакоблок, бетонный блок, дерево (брус, клееный брус), каркасная технология (деревянный каркас, металлокаркас (ЛСТК)).

Фасад дома и его наружную отделку так же возможно выполнить с применением различных облицовочных материалов: структурной штукатурки, (с утеплителем и без), сайдингом (пластиковый или металлосайдинг), фиброплитами, кирпича.

 
6 Избранные
проекты

Доставка проектов по России: Москва (Московская область), Санкт-Петербург (Ленинградская область), Краснодар, Ростов-на-Дону, Ставрополь, Сочи, Волгоград, Новосибирск, Белгород, Брянск, Воронеж, Саратов, Хабаровск, Астрахань, Нальчик, Владикавказ, Екатеринбург, Тюмень, Самара, Нижний Новгород, Казань, Пермь, Уфа, Челябинск, Красноярск, Ханты-Мансийск, Иркутск, Курган, Оренбург, Омск, Томск, Барнаул, Новокузнецк, Кемерово, Абакан, Чита, Якутск, Южно-Сахалинск, Петропавловск-Камчатский и страны ближнего зарубежья: Белоруссия, Украина, Казахстан