Добро пожаловать на http://vipplan.ru

Випплан Орел - это тысячи проектов домов в нашем каталоге!

Вы всегда сможете найти для себя проект дома вашей мечты! Даже если этого не случилось, мы готовы в любую минуту предложить проект индивидуального дома.

Забыли пароль?
Вы еще не регистрировались?

Перейдите по ссылке ниже на страницу регистрации.

Регистрация...

Внимание!!!

В проектную документацию могут быть внесены изменения любой сложности, в соответствии в Вашими пожеланиями!

Полезные статьи

Монолитный коттедж с несъемной опалубкой

Перед тем, как вы задумаетесь о строительстве своего коттеджа, необходимо выбрать, сами вы будете руководить строительством, нанимать разных рабочих, или будете обращаться в строительную фирму, и заключать с ними договор. Но даже к этому вопросу нужно подходить правильно, обдумав все плюсы и минусы выбора....

Перекрытия в доме

Перекрытия – одно из важнейших составляющих строящегося дома. Это горизонтальная внутренняя защитная конструкция, разделяющая по уровню смежные помещения дома. По назначению выделяют подвальные, межэтажные и чердачные перекрытия. При проектировании домов и зданий различного назначения, требования к межэтажным перекрытиям определяются их местоположением и функциями разделяемых помещений: надподвальные, межэтажные, чердачные и т.д....

Проекты домов и коттеджей > Каталог проектов домов > Эскизный проект двухэтажного дома с мансардой Vg2317

Эскизный проект двухэтажного дома с мансардой Vg2317

Эскизный проект двухэтажного дома с мансардой
Зарегистрируйтесь

Проект № Vg2317


Техническое описание
Общая площадь: 168.42 м2
Жилая площадь: 85.61 м2
Высота здания: 11.43 м
Размеры дома: 8.06м×10.06м
Кол-во комнат: 6
Цокольный этаж: нет
Гараж: нет
Мансарда: есть

Kонструкция
Фундамент: ленточный монолитный ж/б
Перекрытия: сборные ж/б плиты
Материал стен: Кирпич

Архитектурный раздел
АР+КР - 56 000 (Со скидкой 20%)
Эскизный проект индивидуального двухэтажного жилого дома с мансардой с размерами здания 8,06x10,06 м. Наружная отделка здания - облицовочный кирпич бежевый и коричневый. Декоративный пояс по низу окон 2 этажа. Фундамент – ленточный монолитный ж/б. Наружные стены здания: кирпич рядовой, тех.зазор, отделка фасада облицовочным кирпичом. Внутренние стены и перегородки: кирпич рядовой. Крыша многоскатная.Кровля здания - металлочерепица. Лестница - по индивидуальному заказу. Окна – металлопластиковые.
Генплан застройки участка / Паспорт проекта 7000 руб / 10000 руб
Инженерный раздел (полный) 84000 руб
Смета на строительство 42000 руб
Теплотехнический расчет материалов стен Бесплатно
Стоимость проекта со незначительнми изменениями 65800 руб
Стоимость проекта со средними изменениями* 78400 руб
Стоимость проекта со значительными изменениями** 81800 руб

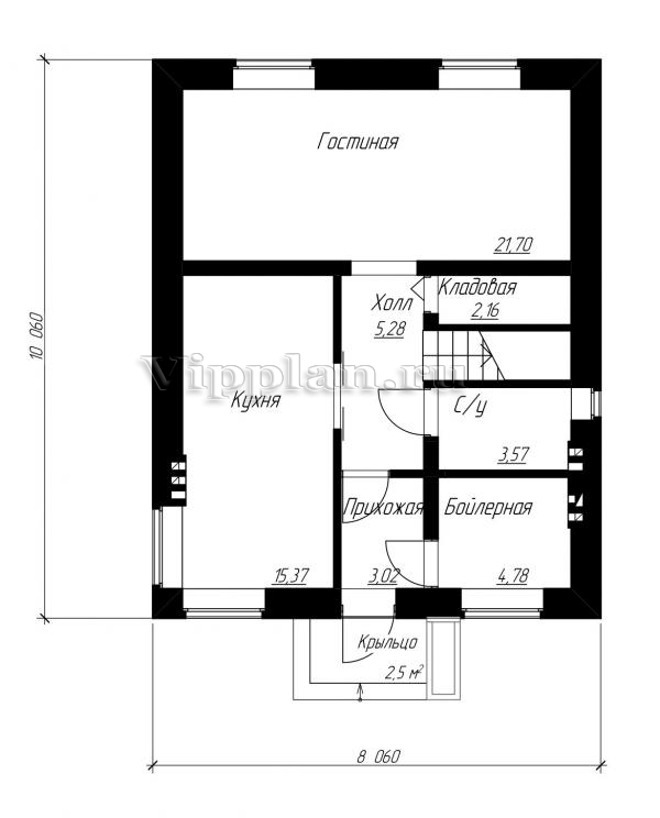
План первого этажа


Прихожая — 3,02 кв м
Бойлерная — 4,78 кв м
Холл — 5,28 кв м
Кухня — 15,37 кв м
Первый этаж

Эскизный проект двухэтажного дома с мансардой

Эскизный проект двухэтажного дома с мансардой

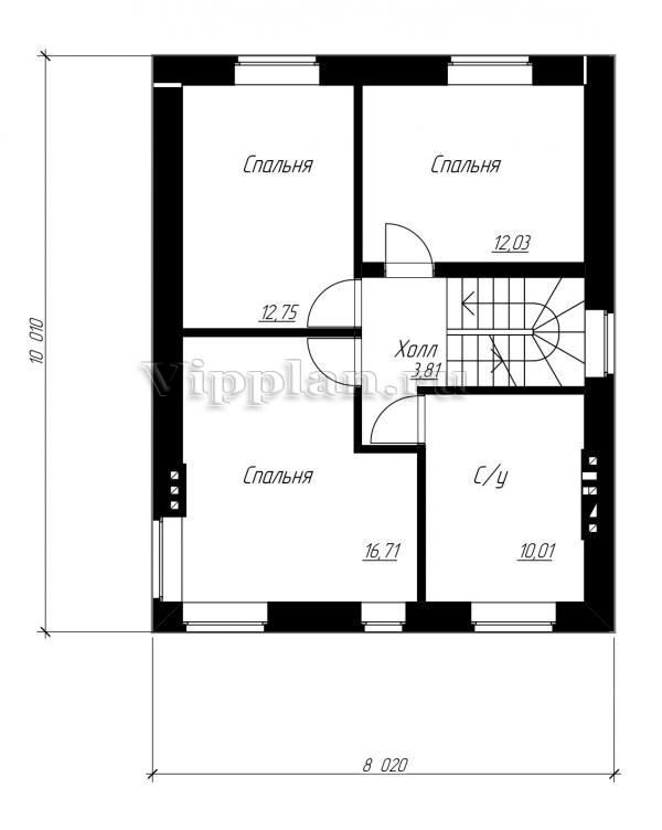
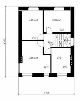
План второго этажа


Холл — 3,81 кв м
Спальня — 16,71 кв м
Спальня — 12,75 кв м
Спальня — 12,03 кв м
С/у — 10,01 кв м

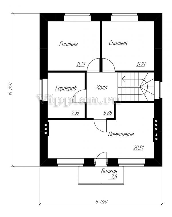
План мансардного этажа


Холл — 5,88 кв м
Гардероб — 7,35 кв м
Спальня — 11,21 кв м
Спальня — 11,21 кв м
Помещение — 20,51 кв м
Балкон — 3,6 кв м
Эскизный проект двухэтажного дома с мансардой Эскизный проект двухэтажного дома с мансардой Эскизный проект двухэтажного дома с мансардой Эскизный проект двухэтажного дома с мансардой
Внесение изменений и привязка к участку строительства

В любой из проектов от компании VIPplan - Орел по вашему желанию могут быть внесены изменения в материалы стен, материалы наружной отделки дома, а также будет произведена адаптация проекта под конкретный регион строительства (с учетом грунтов региона, геологических особенностей вашего участка и местных климатических условий) - БЕСПЛАТНО !!! (кроме проектов со скидкой и проектов наших партнеров).

Любой из проектов, размещенных на сайте orel.vipplan.ru мы можем выполнить из требуемых вам строительных материалов: ячеистый бетон (газобетон, пеноблок), керамоблок, кирпич, шлакоблок, бетонный блок, дерево (брус, клееный брус), каркасная технология (деревянный каркас, металлокаркас (ЛСТК)).

Фасад дома и его наружную отделку так же возможно выполнить с применением различных облицовочных материалов: структурной штукатурки, (с утеплителем и без), сайдингом (пластиковый или металлосайдинг), фиброплитами, кирпича.

 
6 Избранные
проекты

Доставка проектов по России: Москва (Московская область), Санкт-Петербург (Ленинградская область), Краснодар, Ростов-на-Дону, Ставрополь, Сочи, Волгоград, Новосибирск, Белгород, Брянск, Воронеж, Саратов, Хабаровск, Астрахань, Нальчик, Владикавказ, Екатеринбург, Тюмень, Самара, Нижний Новгород, Казань, Пермь, Уфа, Челябинск, Красноярск, Ханты-Мансийск, Иркутск, Курган, Оренбург, Омск, Томск, Барнаул, Новокузнецк, Кемерово, Абакан, Чита, Якутск, Южно-Сахалинск, Петропавловск-Камчатский и страны ближнего зарубежья: Белоруссия, Украина, Казахстан