Добро пожаловать на http://vipplan.ru

Випплан Орел - это тысячи проектов домов в нашем каталоге!

Вы всегда сможете найти для себя проект дома вашей мечты! Даже если этого не случилось, мы готовы в любую минуту предложить проект индивидуального дома.

Забыли пароль?
Вы еще не регистрировались?

Перейдите по ссылке ниже на страницу регистрации.

Регистрация...

Внимание!!!

В проектную документацию могут быть внесены изменения любой сложности, в соответствии в Вашими пожеланиями!

Полезные статьи

Комбинированные дома

Посмотрите, насколько далеко шагнула архитектура за последние десятилетия. Сколько изменилось в облике современных городов. А задумывались ли наши родители, о том что они увидят необыкновенные небоскребы и элитные многоквартирные дома, чьи фасады напоминают обруганную капиталистическую действительность. У людей появилась возможность построить дом за городом и в тишине на природе, реализовать любые дизайнерские фантазии. Те, кто может позволить себе частный дом, не ограничены финансами. Для многих частный дом – это показатель их материального благополучия, поэтому никто из них не хочет испол...

Плиты перекрытий

Железобетонные плиты очень широко используются в строительстве. При помощи них возводят как промышленные объекты так жилые. Железобетонные плиты перекрытия являются главной частью любого строительного объекта вне зависимости от этажности....

Проекты домов и коттеджей > Каталог проектов домов > Проект одноэтажного дома с подвалом и террасой Vg2345

Проект одноэтажного дома с подвалом и террасой Vg2345

Проект одноэтажного дома с подвалом и террасой
Зарегистрируйтесь

Проект № Vg2345


Техническое описание
Общая площадь: 149.96 м2
Жилая площадь: 85.6 м2
Высота здания: 6.6 м
Размеры дома: 14.22м×16.82м
Кол-во комнат: 4
Цокольный этаж: есть
Гараж: нет
Мансарда: нет

Kонструкция
Фундамент: Ленточный монолитный ж/б
Перекрытия: Монолитное ж/б
Материал стен: Газобетон

Архитектурный раздел
Конструктивный раздел
Инженерный раздел
АР+КР - 52 000 (Со скидкой 20%)
АР+КР+ИР - 104 500 (Со скидкой 50%)
Модель проекта индивидуального одноэтажного жилого дома с подвалом размерами здания 14,22 x 16,82 м. Наружная отделка здания - керамогранит. Фундамент - ленточный монолитный ж/б. Наружные стены - газобетонный блок с воздушным зазором, пароизоляцией и отделкой керамогранитом. Внутренние стены - газобетонный блок. Перегородки - газобетонный блок. Пол подвала и частично первого этажа - пол по грунту. Межэтажное перекрытие - монолитное ж/б. Крыша - многоскатная. Кровля - металлочерепица. Окна - металлопластиковые.
Генплан застройки участка / Паспорт проекта 7000 руб / 10000 руб
Инженерный раздел (полный) 52500 руб (75000 руб)
Смета на строительство 37500 руб
Теплотехнический расчет материалов стен Бесплатно
Стоимость проекта со незначительнми изменениями 61250 руб
Стоимость проекта со средними изменениями* 72500 руб
Стоимость проекта со значительными изменениями** 75500 руб

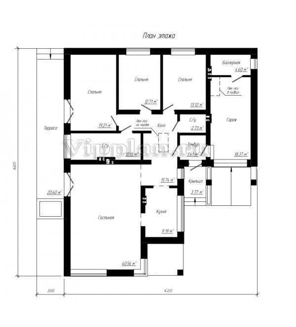
План первого этажа


Тамбур - 3,61 кв м
Холл - 15,74 кв м
Кухня - 9,19 кв м
Гостиная - 40,56 кв м
С/у - 10,13 кв м
Спальня - 19,21 кв м
Спальня - 12,71 кв м
Спальня - 13,12 кв м
С/у - 2,73 кв м
Бойлерная - 4,60 кв м
Гараж - 18,37 кв м
Проект одноэтажного дома с подвалом и террасой Проект одноэтажного дома с подвалом и террасой Проект одноэтажного дома с подвалом и террасой Проект одноэтажного дома с подвалом и террасой

Модификации проектов

Внесение изменений и привязка к участку строительства

В любой из проектов от компании VIPplan - Орел по вашему желанию могут быть внесены изменения в материалы стен, материалы наружной отделки дома, а также будет произведена адаптация проекта под конкретный регион строительства (с учетом грунтов региона, геологических особенностей вашего участка и местных климатических условий) - БЕСПЛАТНО !!! (кроме проектов со скидкой и проектов наших партнеров).

Любой из проектов, размещенных на сайте orel.vipplan.ru мы можем выполнить из требуемых вам строительных материалов: ячеистый бетон (газобетон, пеноблок), керамоблок, кирпич, шлакоблок, бетонный блок, дерево (брус, клееный брус), каркасная технология (деревянный каркас, металлокаркас (ЛСТК)).

Фасад дома и его наружную отделку так же возможно выполнить с применением различных облицовочных материалов: структурной штукатурки, (с утеплителем и без), сайдингом (пластиковый или металлосайдинг), фиброплитами, кирпича.

 
6 Избранные
проекты

Доставка проектов по России: Москва (Московская область), Санкт-Петербург (Ленинградская область), Краснодар, Ростов-на-Дону, Ставрополь, Сочи, Волгоград, Новосибирск, Белгород, Брянск, Воронеж, Саратов, Хабаровск, Астрахань, Нальчик, Владикавказ, Екатеринбург, Тюмень, Самара, Нижний Новгород, Казань, Пермь, Уфа, Челябинск, Красноярск, Ханты-Мансийск, Иркутск, Курган, Оренбург, Омск, Томск, Барнаул, Новокузнецк, Кемерово, Абакан, Чита, Якутск, Южно-Сахалинск, Петропавловск-Камчатский и страны ближнего зарубежья: Белоруссия, Украина, Казахстан